The property extends to a total site area of c. 1.2 acres (0.48 ha) and currently comprises a vacant building arranged over ground and five upper floors, providing a Gross Internal Area (GIA) of c. 63,697 sqft (c. 5,918 sqm). Surrounding the building are c. 100 surface car parking spaces.
The main pedestrian access to the existing building is provided via Linenhall Street to the south, with vehicular access to the adjoining surface car parking area also being from Linenhall Street via a single-entry point.
Formerly comprising the Lisburn Health Centre (medical/primary care) before services were transferred to the nearby Lagan Valley Hospital in 2023, the existing building is understood to have been constructed in the late c. 1970s and comprises a concrete block frame and brick façade with double-glazed windows throughout.
Internally, the accommodation is primarily cellular in layout, designed to meet the previous specific operational requirements of the vendor, complemented by open-plan workspaces. Each floor incorporates a range of private offices, meeting rooms and ancillary areas, with the main plan areas located across ground and fifth floor levels. The upper floors of the building are accessed via a central core incorporating two passenger lifts and a main staircase, which is supplemented by two additional staircases providing alternative vertical circulation.
The floorplates, which are irregular in shape, are broadly consistent throughout the building and arranged around a central landscaped courtyard area, the existence of which enhances natural light levels to the interior.
Although part of the property’s northern boundary appears to front directly onto Bridge Street, a narrow strip of land lies in between. While the vendor retains ownership of this strip, it will not be included in the proposed sale.
The property extends to a total site area of c. 1.2 acres (0.48 ha) and currently comprises a vacant building arranged over ground and five upper floors, providing a Gross Internal Area (GIA) of c. 63,697 sqft (c. 5,918 sqm). Surrounding the building are c. 100 surface car parking spaces.
The main pedestrian
The property extends to a total site area of c. 1.2 acres (0.48 ha) and currently comprises a vacant building arranged over ground and five upper floors, providing a Gross Internal Area (GIA) of c. 63,697 sqft (c. 5,918 sqm). Surrounding the building are c. 100 surface car parking spaces.
The main pedestrian access to the existing building is provided via Linenhall Street to the south, with vehicular access to the adjoining surface car parking area also being from Linenhall Street via a single-entry point.
Formerly comprising the Lisburn Health Centre (medical/primary care) before services were transferred to the nearby Lagan Valley Hospital in 2023, the existing building is understood to have been constructed in the late c. 1970s and comprises a concrete block frame and brick façade with double-glazed windows throughout.
Internally, the accommodation is primarily cellular in layout, designed to meet the previous specific operational requirements of the vendor, complemented by open-plan workspaces. Each floor incorporates a range of private offices, meeting rooms and ancillary areas, with the main plan areas located across ground and fifth floor levels. The upper floors of the building are accessed via a central core incorporating two passenger lifts and a main staircase, which is supplemented by two additional staircases providing alternative vertical circulation.
The floorplates, which are irregular in shape, are broadly consistent throughout the building and arranged around a central landscaped courtyard area, the existence of which enhances natural light levels to the interior.
Although part of the property’s northern boundary appears to front directly onto Bridge Street, a narrow strip of land lies in between. While the vendor retains ownership of this strip, it will not be included in the proposed sale.
Former Lisburn Health Centre (medical/ primary care) before services transferred to Lagan Valley Hospital Former Lisburn Health Centre (medical/ primary care) before services transferred to Lagan Valley Hospital
Prominent location in Lisburn city centre with substantial frontage to Linenhall Street
Freehold site extending to a total area of c. 1.2 acres (0.48 ha)
Existing building extends to c. 63,697 sqft (c. 5,918 sqm) (GIA) and is arranged over ground and five upper floors
Floorplates are arranged around a central landscaped courtyard area
c. 100 off-street surface car parking spaces
Part of property identified as Development Opportunity Site within draft BMAP 2015
Excellent connectivity with the M1 Motorway easily accessible to the south-east within a c. 5-minute drive
To be sold with the benefit of vacant possession
Unconditional offers sought, subject to contract
The property is located on Linenhall Street in Lisburn city centre, a short distance to the south-east of Market Square.
The immediate surrounding area comprises a diverse mix of uses, including a Council owned public car park to the south, Lisburn City Library and adjoining office accommodation to the west, a newly developed social housing block to the east and mixed retail / residential premises fronting Bridge Street to the north. Lisburn Castle Gardens, which comprises a historic public park occupying the former grounds of Lisburn Castle, is located a short distance to the north-east of the property.
The property benefits from excellent transport connectivity. The M1 Motorway is accessible within a c. 5 minutes’ drive to the south-east, via Sloan Street. Linenhall Street connects to the A1 to the south-east of the property, providing north-eastbound access across the Greater Belfast area and south-westbound access towards Dublin via Hillsborough, Dromore and Banbridge.
Lisburn train station is located c. 0.3 miles (0.48 km) to the north-west of the property and provides regular services to Belfast’s Grand Central Station in a journey time of c. 22 minutes.
The property is ideally situated between Belfast’s two main airports, with Belfast City Airport accessible by car in a journey time of c. 20 minutes and Belfast International Airport in a journey time of c. 25 minutes.
The property is located on Linenhall Street in Lisburn city centre, a short distance to the south-east of Market Square.
The immediate surrounding area comprises a diverse mix of uses, including a Council owned public car park to the south, Lisburn City Library and adjoining office accommodation to the
The property is located on Linenhall Street in Lisburn city centre, a short distance to the south-east of Market Square.
The immediate surrounding area comprises a diverse mix of uses, including a Council owned public car park to the south, Lisburn City Library and adjoining office accommodation to the west, a newly developed social housing block to the east and mixed retail / residential premises fronting Bridge Street to the north. Lisburn Castle Gardens, which comprises a historic public park occupying the former grounds of Lisburn Castle, is located a short distance to the north-east of the property.
The property benefits from excellent transport connectivity. The M1 Motorway is accessible within a c. 5 minutes’ drive to the south-east, via Sloan Street. Linenhall Street connects to the A1 to the south-east of the property, providing north-eastbound access across the Greater Belfast area and south-westbound access towards Dublin via Hillsborough, Dromore and Banbridge.
Lisburn train station is located c. 0.3 miles (0.48 km) to the north-west of the property and provides regular services to Belfast’s Grand Central Station in a journey time of c. 22 minutes.
The property is ideally situated between Belfast’s two main airports, with Belfast City Airport accessible by car in a journey time of c. 20 minutes and Belfast International Airport in a journey time of c. 25 minutes.
The property is situated within the Lisburn & Castlereagh City Council (LCCC) area. The LCCC Local Development Plan (LDP) 2032 Plan Strategy was formally adopted in September 2023.
Until the Local Policies Plan (LPP) is progressed and adopted as the final element of the LDP, a transitional period applies. Accordingly, the zonings and designations set out in the Belfast Urban Area Plan (BUAP) 2001, draft Belfast Metropolitan Area Plan (BMAP) 2015 and Lisburn Area Plan (LAP) 2001 continue to be material considerations. The property is located within the Lisburn settlement boundary and is designated as part of Lisburn City Centre under all relevant development plans.
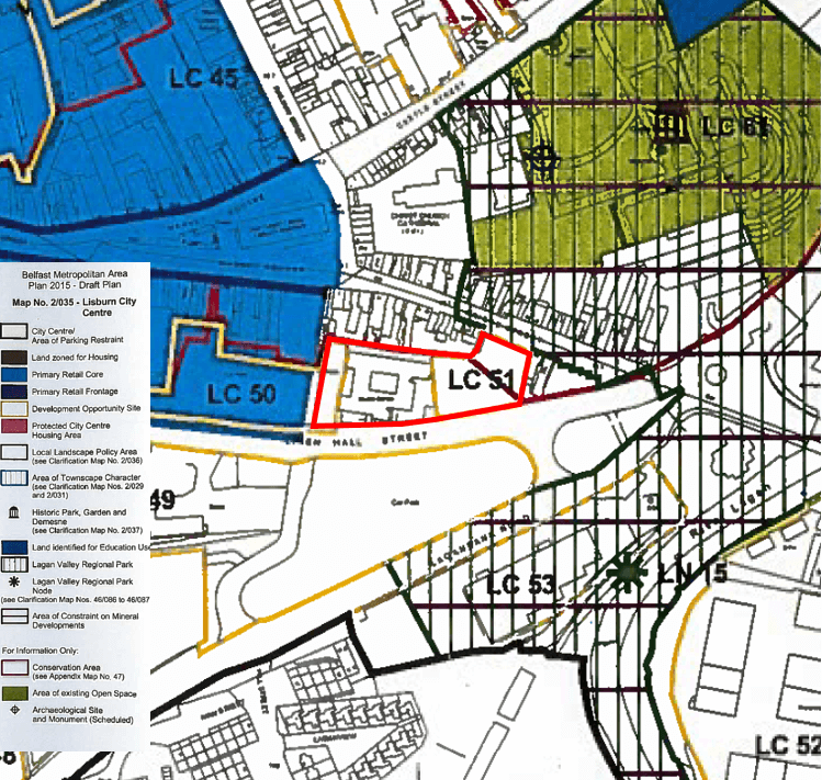
The existing building at the property is neither Listed nor considered to be of architectural or historic significance. The Lisburn Conservation Area encompasses the historic core of the city (including (Market Square, Castle Street, Railway Street, Bridge Street and parts of Bow Street/Wallace Avenue). A portion of the property fronting Bridge Street falls within the Conservation Area and is also identified as an area of archaeological potential. In addition, the surface car park area of the property is identified as Development Opportunity Site LC 51 within the draft BMAP 2015.
A detailed planning context prepared specifically for the property by planning consultancy, Clyde Shanks, is available within the supplementary information pack and can be provided upon request.
.
The property is understood to be held Freehold. All relevant title information is available and can be provided to interested parties upon request.
The property is being offered for sale by way of informal tender and we are instructed to seek offers in excess of £1,750,000, subject to contract.
Interested parties should note that the vendor will have sole discretion to accept or reject any offer and is not bound to accept the highest (or indeed any) offer received. The vendor will reserve the absolute right to seek to negotiate with any bidder after the receipt of initial bids and shall not be bound by, nor made conditional upon, any bidder’s offer as stated.
We understand from Land & Property Services that the rates payable to be as follows:
Net Annual Value (NAV): £291,000
Rates Poundage 2025/26: £0.566150
Rates Payable: £164.749.65
We understand the property is not elected for VAT purposes.
Internal inspections of the property can be arranged by appointment only with the retained agents, whose contact details are below.
The property has an energy efficiency rating of 69 C. A copy of the full certificate can be made available upon request.
As a business carrying out estate agency work we are required to verify the identity of both the vendor and the purchaser as outlined in the following: The Money Laundering, Terrorist Financing and Transfer of Funds (Information on the Payer) Regulations 2017 – https://www.legislation.gov.uk/uksi/2017/692/contents. Any information and documentation provided by you will be held for a period of five years from when you cease to have a contractual relationship with Lisney. The information will be held in accordance with General Data Protection Regulation (GDPR) on our client file and will not be passed on to any other party, unless we are required to do so by law and regulation.
For further information:
David McNellis: 028 9050 1551 / 07887 911 077
dmcnellis@lisney-belfast.com
George Jolliffe: 028 9050 1501 / 07718 493 197
gjolliffe@lisney-belfast.com
Viewing strictly by appointment with the sole selling agent Lisney
Accommodation
.
EPC: C
Full EPC certificate available on request.
You may also like
Hamilton Business Park 132 Tamnamore Road, Dungannon, Co. Tyrone, BT71 6HW
Thanks for showing an interest in our research reports. For access to our archive, just add your details and we’ll get back right away with your account confirmation and the publications you’d like to read.
Thanks for showing an interest in our research reports. For access to our archive, just add your details and we’ll get back right away with your account confirmation and the publications you’d like to read.