Fully operational motel with business operating as usual and future bookings actively being taken, Overdale Motel, 150 Belsize Road, Lisburn,
Property Overview
- Features
- Location
- Rates Payable
- Title
- Price
- Viewings
- VAT
- EPC
- Customer Due Diligence
- Contact
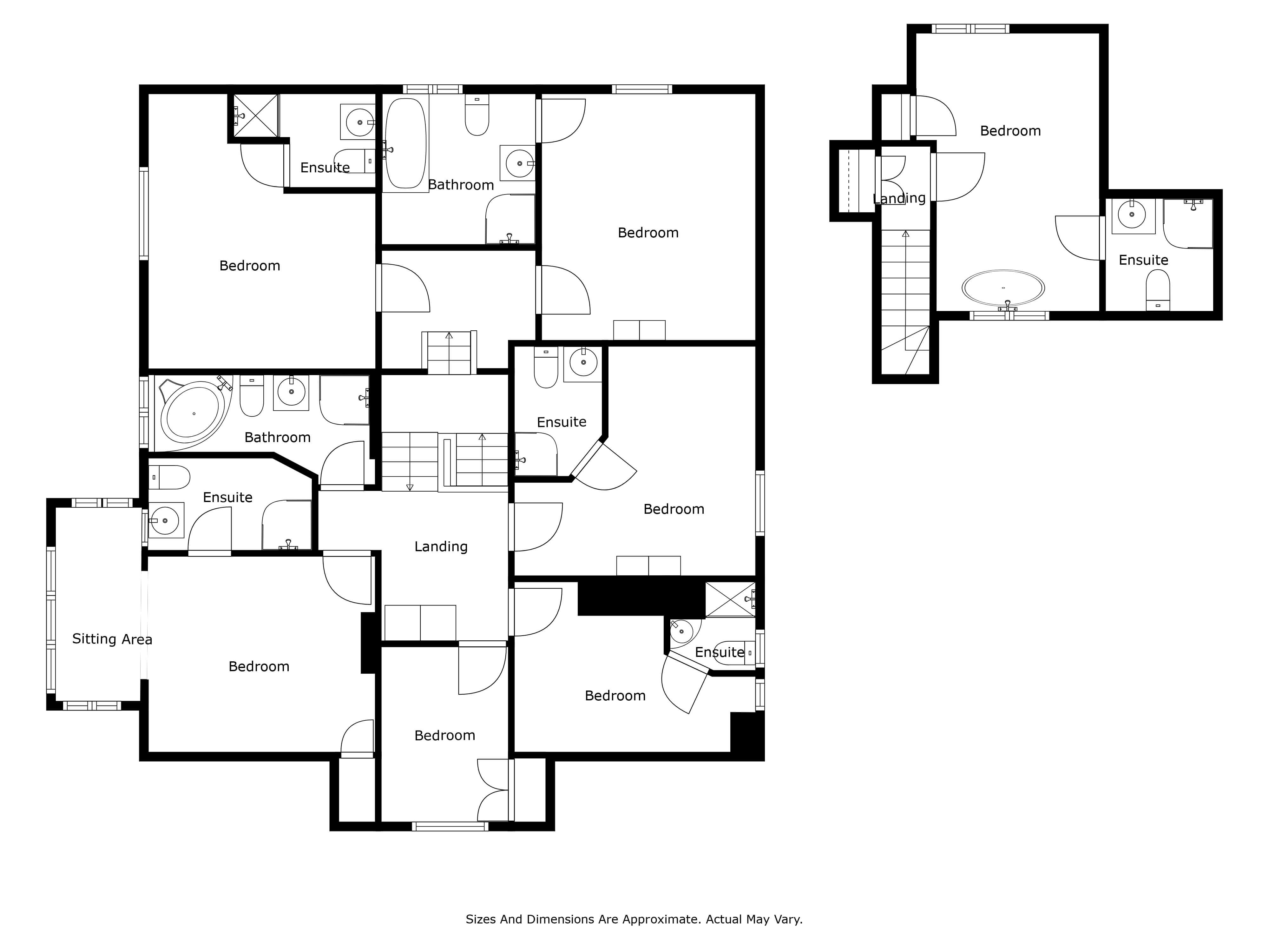
The property comprises two interconnected two-storey buildings, set within landscaped grounds that include seven off-street parking spaces and attractive garden and outdoor seating areas. Access is provided via a private driveway directly from Belsize Road.
The principal building across the property accommodates the Overdale Motel, which is accessed through an entrance porch leading into a bright and welcoming central hallway. The ground floor features three ensuite bedrooms, a dining area, lounge, unlicensed bar area, kitchen, WC and storage room. Two of the bedrooms enjoy direct access to the surrounding garden area.
The first floor is arranged across split levels at the front and rear of the building, both accessed via a central staircase. This level provides six bedrooms in total, five of which are ensuite. The remaining bedroom benefits from a private bathroom located directly opposite the hallway.
Adjoining the main building and connected at ground floor level is a self-contained one-bedroom maisonette, finished to a high standard throughout. The ground floor comprises an entrance hallway, a modern kitchen, generous living space and a shower room. A well-proportioned bedroom and ensuite bathroom can be found at first floor level. The maisonette benefits from its own private entrance and rear garden that is accessed directly from the living room area.
The property comprises two interconnected two-storey buildings, set within landscaped grounds that include seven off-street parking spaces and attractive garden and outdoor seating areas. Access is provided via a private driveway directly from Belsize Road. The principal building across the property
- Fully operational motel comprising of nine bedrooms and extending to a total area of c.2,928 sqft (272.09 sqm)
- Forward bookings secured well into 2026
- Adjoining one-bedroom maisonette extending to a total area of c.807 sqft (74.91 sqm)
- Total site area of c.0.3 acres (0.12 ha)
- Attractive surrounding garden / outdoor seating areas
- Seven off-street car parking spaces, accessed via a private driveway directly from Belsize Road
- Located c.1.2 miles (1.9 km) to the north of Lisburn city centre
- Excellent connectivity, with J3 and J6 of the M1 Motorway both easily accessible
- Long standing (c.45 years) business available due to Vendor retirement
- Potential to re-purpose property to a range of alternative uses, including a children's day care centre, subject to securing necessary approval
Accommodation
.
Lisney Commercial
Services
Meet our Experts
- Development Land
- Industrial
- Investment
- Licensed and Leisure
- Offices
- Retail
- Specialist
