The subject property comprises a fully approved plot of development land ready for immediate construction.
The lands have full planning approval with a S76 agreement in place for the construction of 33 units. An Article 161 drainage agreement has been formalised.
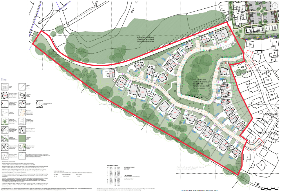
Within the lands areas have been designated for public open space/play areas (c1.45 acres, 0.59ha) including a copse of centrally located mature trees. (TPO/2021/0011/LA04).
The subject property comprises a fully approved plot of development land ready for immediate construction.
The lands have full planning approval with a S76 agreement in place for the construction of 33 units. An Article 161 drainage agreement has been formalised.
Within the lands areas have been designated
The subject property comprises a fully approved plot of development land ready for immediate construction.
The lands have full planning approval with a S76 agreement in place for the construction of 33 units. An Article 161 drainage agreement has been formalised.
Within the lands areas have been designated for public open space/play areas (c1.45 acres, 0.59ha) including a copse of centrally located mature trees. (TPO/2021/0011/LA04).
Mature, parkland setting in a suburban location yet easily accessible to city centre via A55 and public transport links
Lands comprise last phase of this highly successful scheme which has created a mix of refurbished Edwardian architecture with new build dwellings
Full Planning approval for the construction of 33 high specification, energy efficient dwellings (including 5 no. affordable - Ref LA04/2020/2607/F – approved 20 December 2024)
Article 161 drainage agreement formalised
Site area – c 8.26 acres (3.34 ha)
Within easy reach of a wide range of facilities and amenities including Lagan Valley Regional Park, Forestside Shopping Centre, Malone and Belvoir golf clubs and a number of primary / secondary schools
Located in South Belfast, Belvoir Park enjoys a rural backdrop with Shaw’s Bridge and Lagan Valley Regional Park located nearby. In the vicinity are a range of amenities and facilities, accessed via the A55 outer ring road, including Forestside Shopping Centre, Belvoir and Malone Golf clubs, the city centre and George Best City airport.
The subject lands are accessed off Hospital Road, and lie to the west of earlier phases of the wider Belvoir Park development. The scheme has been well received by the market with strong sales due in large part to its combination of modern living with adjacent open space and woodland.
Located in South Belfast, Belvoir Park enjoys a rural backdrop with Shaw’s Bridge and Lagan Valley Regional Park located nearby. In the vicinity are a range of amenities and facilities, accessed via the A55 outer ring road, including Forestside Shopping Centre, Belvoir and Malone Golf clubs, the city
Located in South Belfast, Belvoir Park enjoys a rural backdrop with Shaw’s Bridge and Lagan Valley Regional Park located nearby. In the vicinity are a range of amenities and facilities, accessed via the A55 outer ring road, including Forestside Shopping Centre, Belvoir and Malone Golf clubs, the city centre and George Best City airport.
The subject lands are accessed off Hospital Road, and lie to the west of earlier phases of the wider Belvoir Park development. The scheme has been well received by the market with strong sales due in large part to its combination of modern living with adjacent open space and woodland.
Ref – LA04/2020/2607/F. Full Planning approval secured for: Residential development for the erection of 33 no. dwellings (including 5 no. affordable units) including public open space, equipped children’s play area and associated development (previously approved under Y/2014/0401/F and Y/2014/0390/LBC). Please see ‘Approved Scheme’ tab for more information
The approval allows for the construction of a range of mixed type units across the scheme.
These units are to be Category 1 – over 55, active elderly.
– Planning approval is subject to a S.76 agreement (details upon request).
Drainage – Article 161 agreement formalised. Services have been brought to the site boundaries.
.
Understood to be held Freehold.
Offers Invited.
VAT will be chargeable.
Stamp duty will be the liability of the purchaser.
As a business carrying out estate agency work we are required to verify the identity of both the vendor and the purchaser as outlined in the following: The Money Laundering, Terrorist Financing and Transfer of Funds (Information on the Payer) Regulations 2017 – https://www.legislation.gov.uk/uksi/2017/692/contents. Any information and documentation provided by you will be held for a period of five years from when you cease to have a contractual relationship with Lisney. The information will be held in accordance with General Data Protection Regulation (GDPR) on our client file and will not be passed on to any other party, unless we are required to do so by law and regulation.
For further information:
David McNellis: 028 9050 1551 / 07887 911077
dmcnellis@lisney-belfast.com
Viewing strictly by appointment with the sole selling agent Lisney
Thanks for showing an interest in our research reports. For access to our archive, just add your details and we’ll get back right away with your account confirmation and the publications you’d like to read.
Thanks for showing an interest in our research reports. For access to our archive, just add your details and we’ll get back right away with your account confirmation and the publications you’d like to read.