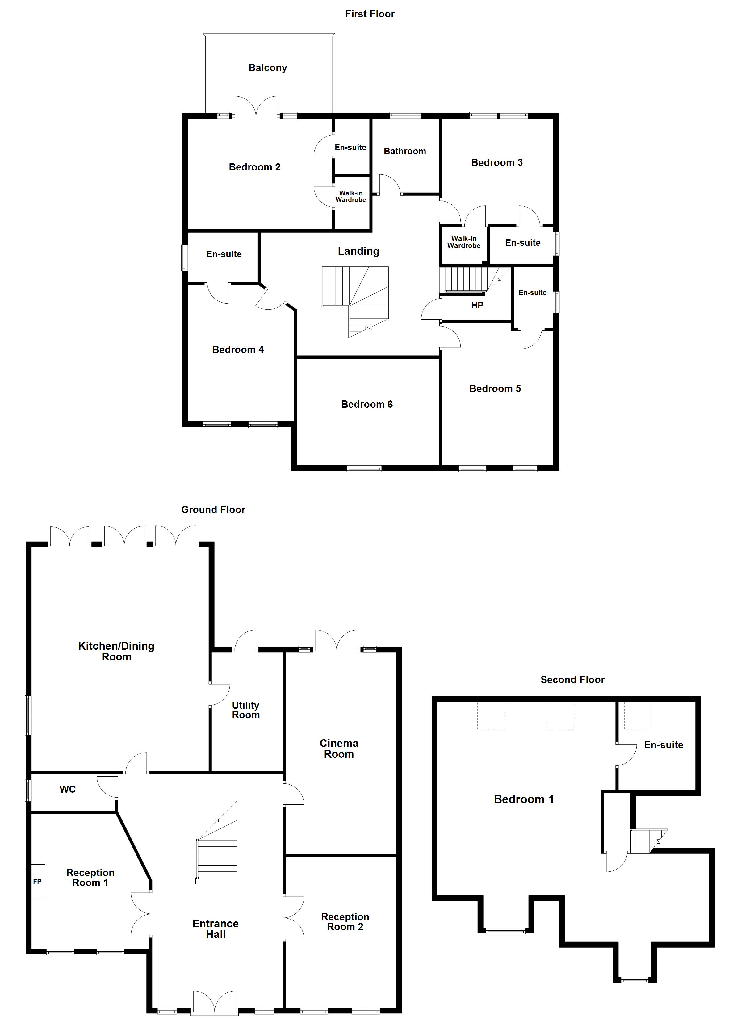
21 Myra Manor is a five-star property in one of Malahide’s most prestigious private estates. Newly renovated, this five-bedroom detached residence comes to the market in immaculate showhouse condition. The elegant interior design and carefully considered layout are complemented by exceptional attention to detail and a luxury finish throughout. Offering over 4,500 sq ft of superb accommodation, the home easily meets the needs of any modern family.
Set within Myra Manor—an exclusive enclave of detached homes just off the Malahide Road and moments from the Castle grounds—No. 21 enjoys a prime position at the end of a quiet cul-de-sac. A beautifully landscaped, south-facing rear garden and a sweeping driveway capable of accommodating 6–7 cars further elevate its standout appeal.
From the moment the motorised gates open, the meticulous landscaping and mature planting create instant curb appeal. Inside, the entrance hall sets the tone: a double front door leads onto a black-and-white chequered tile feature, flowing into herringbone wooden floors with underfloor heating throughout the ground level. A winding staircase, enhanced by large mirrors and feature panelling, fills the space with natural light.
Three reception rooms off the hallway provide versatile spaces for family living—perfect for a home office, playroom, or home theatre.
To the rear, the open-plan kitchen/living/dining room is a true showstopper, complete with a bespoke hand-painted kitchen, a generous island, a built-in media wall, and three sets of doors framing views of the garden and inviting in all-day southern light. The adjoining utility room, fully plumbed and finished to match, offers excellent practicality. All rear doors open onto a sandstone patio and the completely private south-facing garden. The side driveway extension allows easy access to the kitchen and provides further space for additional parking—or even a boat, if the Marina is full.
Upstairs, the first floor boasts five bedrooms, four of which are ensuite. The principal suite features a south-facing balcony—ideal for enjoying morning coffee. The second floor offers an exceptionally large room, suitable for a luxurious hotel-style suite, home gym, cinema, kids’ den, or a private work-from-home retreat entirely separate from the main living areas.
Location is another key advantage. Myra Manor is renowned for its privacy and convenience—close to Malahide Castle, minutes from the Airport, and ideally positioned for access to the M1, M50, and Dublin City Centre. For international buyers and frequent flyers, the ability to reach your front door within 10 minutes of collecting your luggage at Dublin Airport is invaluable.
Malahide offers an extraordinary range of amenities: sailing and water sports at the Marina, golf at Malahide GC or The Island, tennis in the village, and GAA, rugby, cricket, and soccer facilities in the Castle grounds. A selection of top-tier schools, boutiques, restaurants, bars, and the DART—connecting you to the city centre in about 25 minutes—make it one of Dublin’s most desirable places to live.
All in all, No. 21 Myra Manor represents an exceptional opportunity. A residence of unrivalled quality in today’s market, ready to go. Viewing is essential to fully appreciate everything this remarkable family home has to offer.